





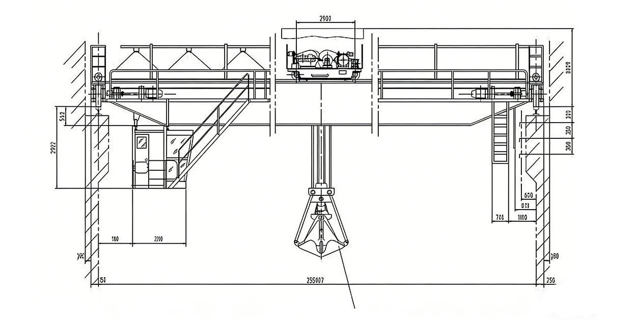
QZ 電動抓斗雙梁橋式起重機是專為散料(礦石、糧食、煤炭等)搬運設計的重載型起重設備,采用雙主梁 + 端梁的橋式結構,搭配電動抓斗作為取物裝置。通過雙主梁沿廠房 / 堆場軌道的縱向運行、小車沿主梁的橫向移動,結合電動抓斗的自動開閉動作,可在矩形作業(yè)區(qū)域內高效完成散料的裝卸、轉運與堆垛。因其雙梁重載結構 + 電動抓斗的自動化適配,已成為港口、礦山、糧食倉儲等行業(yè)散料搬運的核心裝備。
散料專屬高效搬運
電動抓斗集成自動開閉機構,無需人工輔助即可完成散料的抓取 / 卸料,適配礦石、煤炭、谷物等各類散料,大幅提升裝卸作業(yè)效率。
重載穩(wěn)定承載能力
雙主梁采用箱型梁結構,剛性強、承載性能優(yōu),工作等級高,可適配高頻次、大載荷的散料搬運任務,運行穩(wěn)定性遠超單梁設備。
大范圍作業(yè)覆蓋
橋式結構配合雙梁 + 小車的運行方式,作業(yè)范圍覆蓋整個廠房 / 堆場的矩形區(qū)域,空間利用率高,適配大跨度散料存儲場景。
運行平穩(wěn)操作智能
配備雙梁專用 “三合一” 驅動系統(tǒng),大車、小車運行平穩(wěn);抓斗與起升機構聯(lián)動控制,支持駕駛室 / 遙控操作,操作精準且省力。
場景化靈活定制
可根據散料類型(適配不同抓斗類型:四繩抓斗、液壓抓斗等)、起升高度、跨度等需求定制,適配港口、礦山等不同場景的散料搬運。
橋架(雙主梁 + 端梁)
起升與抓斗機構
電氣控制系統(tǒng)


| 產品 | QZ 電動抓斗雙梁橋式起重機 |
| 舉升范圍 | 5-50 噸 / 可定制(對應抓斗容積 0.5-10m3) |
| 舉升高度 | 6 9 12 18 24 32(米)/ 可定制 |
| 跨度 | 10.5-31.5 米 |
| 舉升速度 | 10/5 m/min(起升 / 抓斗開閉速度) |
工作等級 | A5-A7(重載頻繁工作制) |
| 工作環(huán)境溫度 | -20~40℃ |
| 電源 | 三相 380V 50Hz |
| 工作速度 | 大車運行速度 20-30 米 / 分鐘 小車運行速度 10-20 米 / 分鐘 |







